Property Id : 35760
Price: Starting Price 5,200,000 EGP
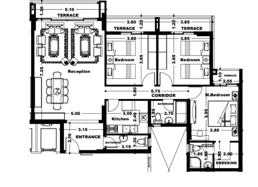
Property Size: 167.00 m2
Bedrooms: 3
Bathrooms: 3
Down Payment: 10%
Finishing Status: Semi Finished
Delivery Date: 2028
Location: New Capital
Installments: Up To 10 Years
Projects: City Oval
Contact Us
Schedule a Meeting?
Main Features
24 Hour Security
Air Conditioners
Club House
Commercial Area
Education Services
Garden
Gym & Spa
Health club
Kids Area
Landscape
Swimming Pools
Other Features
Art's Garden
Basketball courts
BBQ Area
Bike Track
Cafe
Clinic
Club House
Culture & Entertainment
cycle area
Football Courts
Hypermarkets
jacuzzi
Jogging Tracks
Kids Pool
MAINTENANCE
medical center
mosque
Padel Court
Park
Pharmacy
Picnic area
Play Grounds
Restaurant Area
Restaurants
Shop & Dinning
Sports Facilities
Squash Court
walking lane
Water Features
yoga area
اسم المشروع : سيتي اوفال
موقع المشروع : الكمبوند علي شوارع رئيسية و بجوار منطقه جاردن داخل الحي السكني الثامن علي ثلاثه شوارع رئيسيه و تاني قطعه من منطقه المستثمرين و علي بعد ١٠ دقايق من المطار و الكمبوند علي منطقتين خدمات وجاردن
يقسم المشروع الى 20%مباني و 80% مساحات خضراء
خصم كاش يصل الى % 33





