Your search results

Mountain View Icity – Park Villa

Starting Price 14,500,000 EGP

4

Property Id : 33255
Price: Starting Price 14,500,000 EGP
Property Size: 175.00 m2
Bedrooms: 2
Bathrooms: 3
Down Payment: 10%
Finishing Status: Core and Shell
Delivery Date: 2027
Location: 6Th October
Installments: Up To 9 Years
Garden Area: 101
Projects: Mountain View iCity October

Contact Us

Schedule a Meeting?
Main Features
24 Hour Security
Air Conditioners
Club House
Commercial Area
Education Services
Garden
Gym & Spa
Health club
Kids Area
Landscape
Swimming Pools
Other Features
BBQ Area
Bike Track
Cafe
Clinic
Club House
Culture & Entertainment
Football Courts
Hypermarkets
jacuzzi
Kids Pool
MAINTENANCE
medical center
Mosques
Nursery
Park
Pharmacy
Picnic area
Play Grounds
Restaurant Area
Shop & Dinning
Sports Facilities
walking lane
yoga area
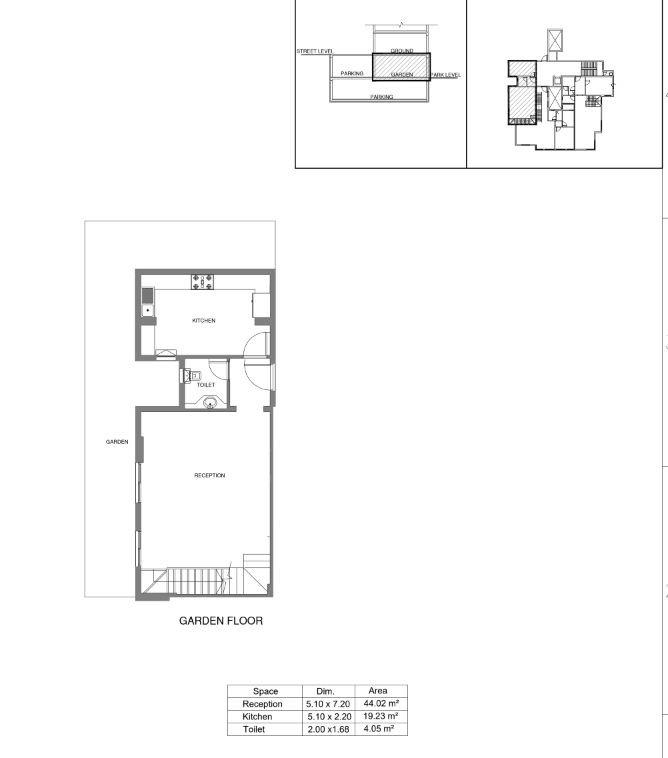
Garden Floor
rooms: 0
baths: 1
Garden Floor
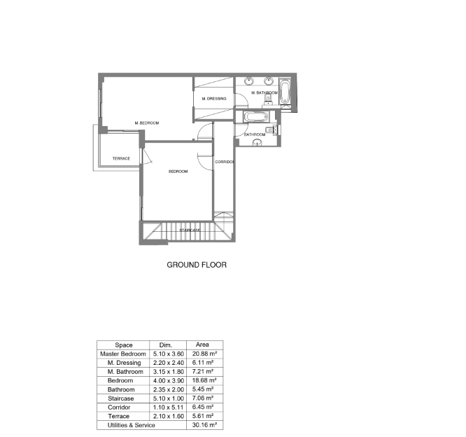
Ground Floor
rooms: 2
baths: 2
Ground Floor

اسم المشروع :اي سيتي

موقع المشروع: يقع ماونتن فيو اي سيتي بحوالي دقيقتين من نادي الصيد.كما يقع كمبوند ماونتن فيو اكتوبر اي سيتي 5 دقائق من ميدان جهينة.

يقسم المشروع الى 20%مباني و 80% مساحات خضراء

Contact Us

Schedule a showing?
Call +201122998886 WhatsApp

Schedule a Meeting?

Sat 23 Nov
Sun 24 Nov
Mon 25 Nov
Tue 26 Nov
Wed 27 Nov
Thu 28 Nov
Fri 29 Nov
Sat 30 Nov
Sun 01 Dec
Mon 02 Dec
In Person
Video Chat
Your information
error: Content is protected !!

Compare Listings

Mountain View